127 – Haus für Demenz der Thurvita AG, Rossrüti
Neubau
Projektwettbewerb
1. Preis
Das stattliche Altersheim Rosengarten am Dorfeingang von Rossrüti soll von seinem Anbau befreit und im Inneren an die Bedürfnisse des neuen Betriebs angepasst werden. Zusammen mit dem gestaffelten Neubau am Chrebsbach und dem Gartenpavillon entsteht ein reizvolles Ensemble.
“Feuerstelle”
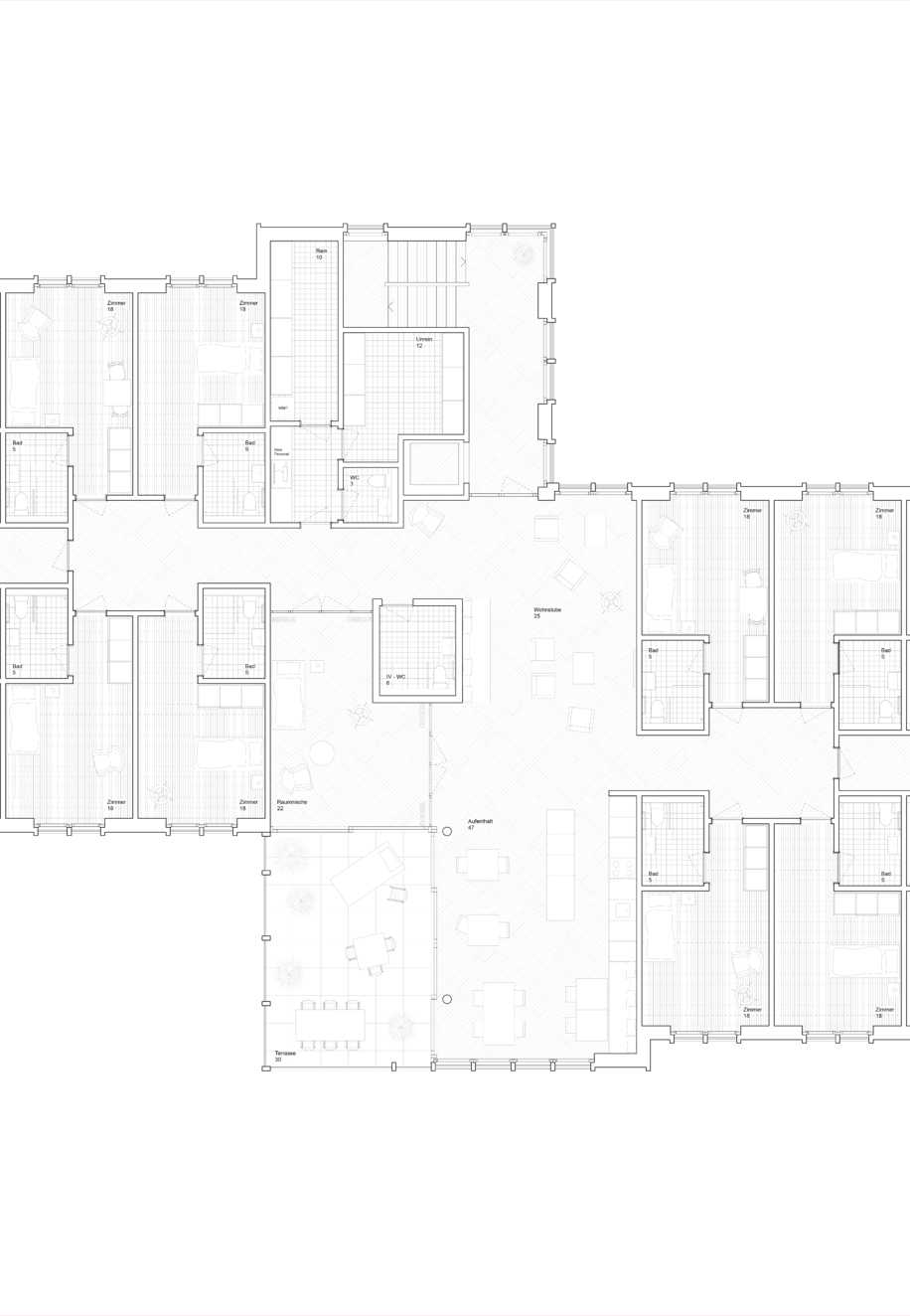
Demente Menschen brauchen Geborgenheit und das Gefühl von Sicherheit durch professionelle und individuelle Betreuung. So führen vier Zugänge zu den insgesamt zehn Wohngruppen. Zentrum jeder dieser familiären Einheiten ist der Aufenthaltsbereich: der Ort der Gemeinsamkeit, der Verpflegung und Betreuung im individuellen Tagesablauf. Hier liegt die «Feuerstelle», die Sinne und Interesse an der Zubereitung der Mahlzeiten weckt. Der Raum ist mehrseitig orientiert und umschliesst die gedeckte Terrasse. Er mäandriert um einen geschliffenen und veredelten Betonkern und schafft ruhige Raumzonen. Fest eingebaute Sofas laden zum Verweilen und Beobachten. Die Wohnnische bietet Menschen mit schwerer Demenz dank Glasabschlüssen einen idealen geschützten Tagesaufenthaltsort, wo sogar Betten aufgestellt werden können. Die acht Einzelzimmer einer Wohngruppe gewähren den Bewohnerinnen und Bewohnern Rückzugsmöglichkeiten. Jeweils vier Zimmer sammeln sich um einen Vorraum zu einer kleinen, übersichtlichen Clustereinheit mit hoher Privatheit. Natürliche und wertige Materialien wie Holz und geschliffener Stein vermitteln Geborgenheit und Wärme. Bodenbeläge in Parkett und Naturstein werden durch haptisch attraktive Textilien ergänzt. Viel blendarmes Licht und ausreichende Kontraste ermöglichen eine gute Orientierung.
Gartenhof und Landschaftsraum
Zwischen Neubau und Haus Rosengarten liegt der weglaufsichere Gartenhof, den die Bewohnerinnen und Bewohner selbständig und barrierefrei betreten können. Hier können sie die wechselnden Jahreszeiten erleben, sich zurückziehen oder ihrem Bewegungsdrang nachgehen. Vereinzelt platzierte Trinkbrunnen sorgen für Erfrischung. Der chaussierte Platz unter dem Blätterdach ist frei bespielbar und bietet Raum für Anlässe. Durch ein verschliessbares Gartentor gelangt man auf einem begleiteten Spaziergang in den Aussenraum mit Weidenbüschen, schwarzen Holunder und Wildrosen.
Projektdaten
| Ort | Rossrüti | 
| Veranstalter | Thurvita AG und Gebrüder Egli Maschinen AG | 
| Programm | Haus für Demenz und Betriebserweiterung | 
| Jahr | 2018-2024 | 
| Geschossflächen | 8'500 m2 | 














