130 – Erweiterung Primarschule Laubegg, Winterthur
Direktauftrag
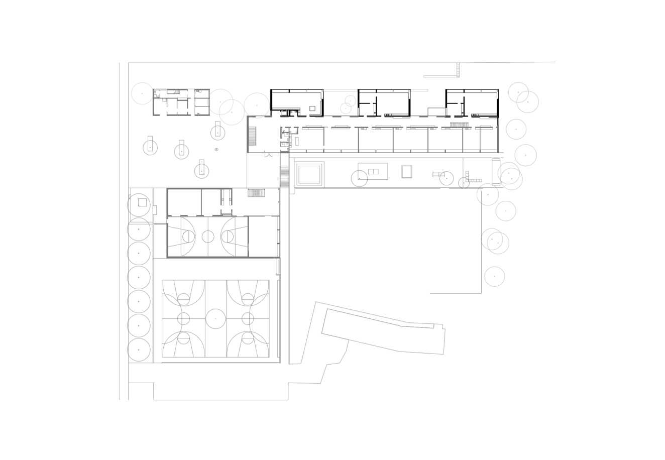
Situation
Das Primarschulhaus Laubegg wurde im Sommer 2002 als erstes Schulhaus im Wohnquartier Winterthur Dättnau eröffnet. Weil die Schülerzahl in den letzten Jahren konstant gestiegen ist wird die Schule jetzt bereits erweitert. Das Erweiterungskonzept baut auf einer Verdichtung der bestehenden Anlage auf. Das Schulgebäude wird auf seiner Rückseite mit drei Anbauten ergänzt, die über den bestehenden Korridor erschlossen werden. Damit kann die städtebauliche Idee der bestehenden Schule weiterentwickelt werden.
Raumstruktur
Die drei Anbauten lehnen sich in ihrer Ausrichtung und Körnigkeit an das vorhandene Hauswartgebäude an. Die lineare Anordnung des bestehenden Schulgebäudes wird mit den angedockten Baukörpern zu einer zweibündigen Anlage erweitert. Die bestehende Baustruktur wird weitgehend erhalten. Die Zugänge zu den Klassenzimmer und Gruppenräumen werden teilweise an die Stelle der bestehenden grossflächigen Korridorfenster gesetzt. Zwischen den Anbauten sorgen die weiteren Korridorfenster für eine gute Belichtung und einen direkten Bezug zur Umgebung. Die Klassenzimmer im Erd- und Obergeschoss sind mit einem Fensterband nach Nordosten orientiert. Die grossen Räume im Sockelgeschoss orientieren sich zu den patioartigen Zwischenräumen.
Material
Weiterbauen steht auch auf der Materialisierungsebene im Zentrum des Projektes. Das Projekt übernimmt dabei die wesentlichen Elemente der bestehenden Schulanlage, so das neu und alt zu einer homogenen Anlage zusammenwachsen. Der Sichtbetonsockel wird um die Ecke in die Höfe gezogen und findet seinen Abschluss in einer präzisen Kante zur Fensteröffnung gegen Südosten. Die Materialisierung der Fassade mit einer Verkleidung aus Faserzementplatten orientiert sich ebenfalls am Bestand. Im Innern setzt sich der Umgang mit dem Bestand fort. Sichtbeton, Parkett und weisse Holzwolle-Akustikdecken werden im Sinne eines Weiterbauens aufgenommen und neu adaptiert.
Projektdaten
| Ort | Winterthur Dättnau | 
| Bauherr | Stadt Winterthur, Departement Schule und Sport, Schulbauten | 
| Programm | Erweiterung Schulgebäude mit 7 Klassenzimmer + Gruppenräumen | 
| Jahr | 2016-2019 | 
| Kosten | 5.3 Mio. | 
| Geschossflächen | 1175 m2 | 

















