056 – Erweiterung Hellpädagogische Schule, Flawil
Erweiterungsbau
Projektwettbewerb im selektiven Verfahren
3.Rang
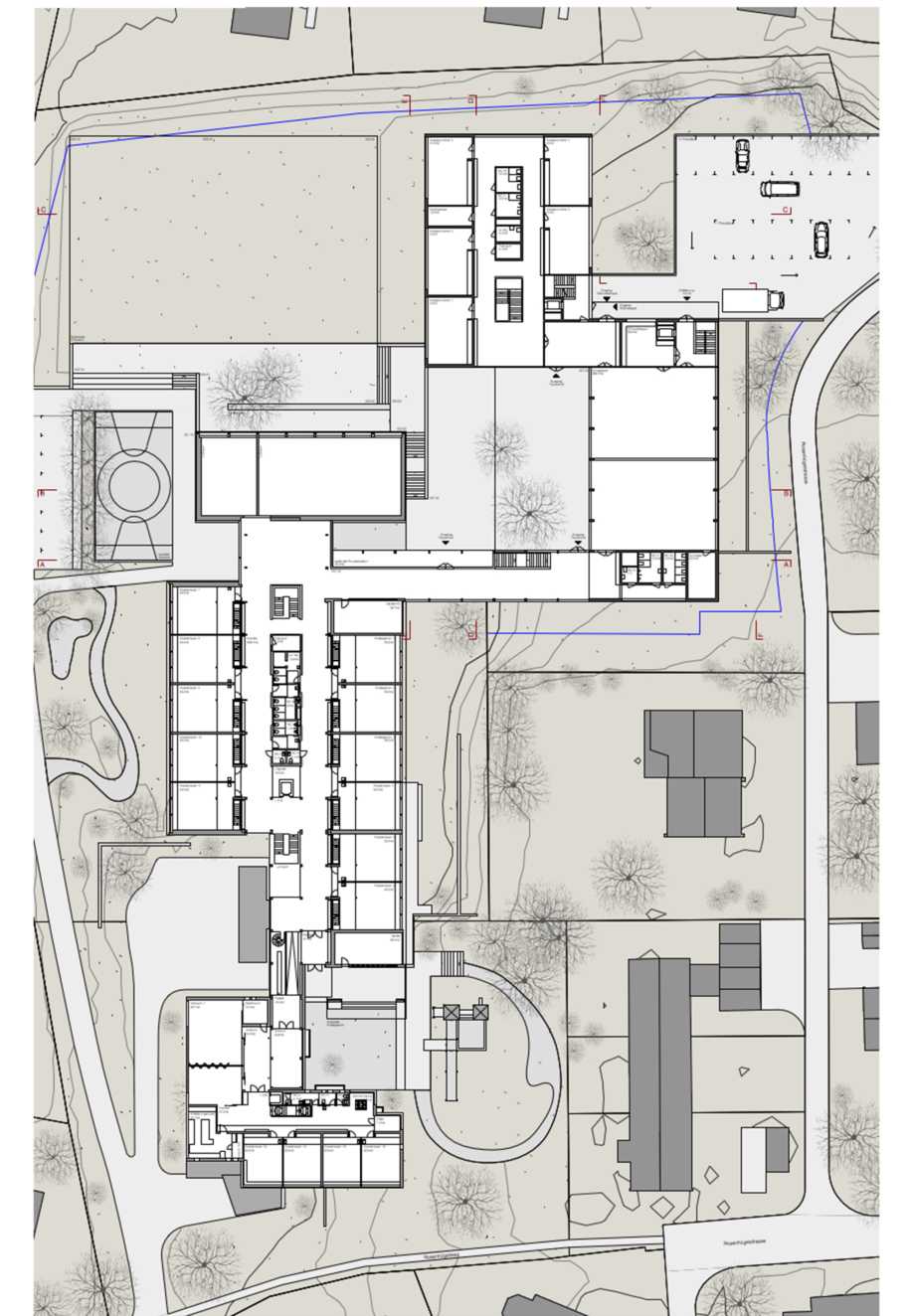
Rosenhügel
Das ruhig gelegene Schulareal liegt in nordwestlicher Hanglage, profitiert so von einer ganztägigen Besonnung und bietet freie Sicht über die Dächer von Flawil und die umliegende Hügellandschaft.
Minor
Eine Erweiterung der fast hermetisch zur Mitte hin orientierten Anlage ist mit den geforderten nutzungsspezifischen Anforderungen städtebaulich anspruchsvoll.
Wie bei einem Wechsel der Tonart von Dur zu Moll (Minor) zeichnet sich mit dem Neubau die Mitte als Leerraum aus. Als intimer Ort bereichert der Innenhof die Anlage und verbindet sie dennoch mit der Umgebung. Ein Teil des Pausenhofs wird über Mittag zu einem attraktiven, windgeschützten und gut besonnten Sitzplatz. Die Spielwiese vermittelt zwischen den Niveaus von Hartplatz und Pausenhof.
Materialisierung
Die Fassade aus nachbearbeitetem Sichtbeton nähert sich in Farbe und Struktur den älteren verputzten Gebäuden an. Die feinen Strukturen der in die Schalung eingelegten Matrizen kontrastieren die Massigkeit der Bauten. Auch die Bandfenster der ersten Etappe werden neu interpretiert. Zum Innenhof wird mit Glas eine lichte Raumstimmung geschaffen – Schiebefenster ermöglichen schwellenlose und behindertengerechte Verbindungen zwischen innen und aussen.
Projektdaten
| Ort | Flawil | 
| Bauherr | Heilpädagogische Vereinigung Gossau-Untertoggenburg-Wil. | 
| Programm | Hellpädagogische Schule | 
| Jahr | 2008 | 
| Geschossflächen | 4850 m2 | 





