064 – Internationales Zentrum für Leistungs- und Breitensport, Winterthur
Neubau
Studienauftrag
Der Sportpark Deutweg liegt an der Schnittstelle zwischen der feinkörnigen Bebauungsstruktur der Wohnbauten und der Grossmasstäblichkeit des Grüzefeldes – eine ideale Referenz für das Internationale Zentrum für Leistungs- und Breitensport.
Rechteck
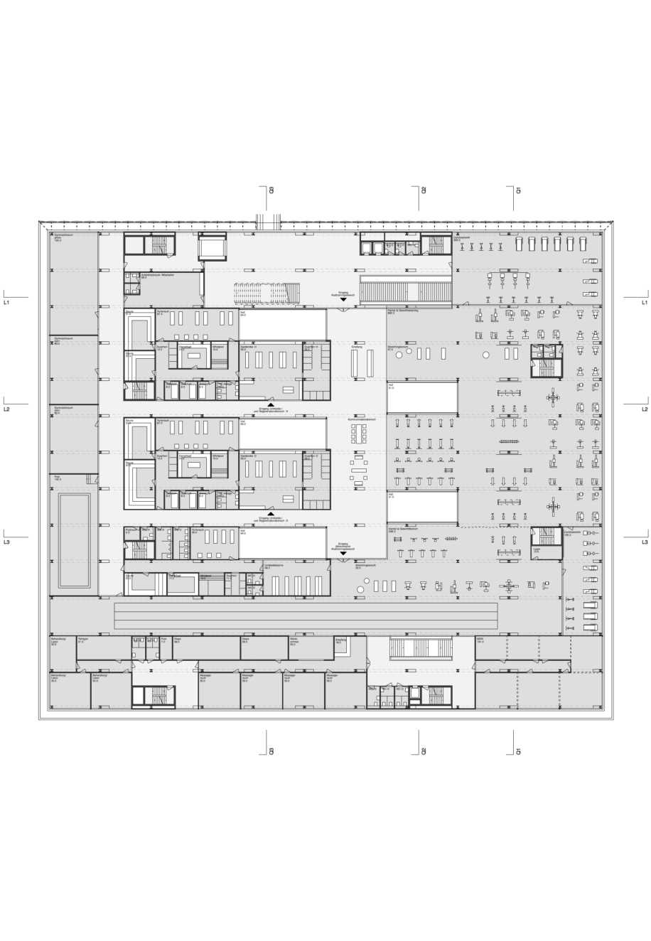
Das transparente Erdgeschoss ermöglicht räumliche Beziehungen in alle vier Himmelrichtungen und verstärkt den schwebenden Charakter des Baukörpers. Horizontale Bänder aus alufarbigem Lochblech bilden die durchlässige Hülle der Obergeschosse. Die Funktionen werden horizontal gestapelt: Im Erdgeschoss liegen die Sporthallen, der Krafttrainingsbereich belegt das 1. und die Bewirtschaftungs- und Übernachtungsräume befinden sich im 2. Obergeschoss. Atmosphärisch werden die Unterkünfte in Form eines „Sportklosters“ konzipiert.
Raumkanten
Örtlich eingekerbte Sitzkanten schaffen Aufenthaltsbereiche in der gefalteten Platzlandschaft, vertikale „Pappelvorhänge“ definieren präzise Raumkanten. Die windgeschützte Dachterrasse ist Lounge und Bar zugeordnet, in den flächigen Holzrost sind luftig-leichte Gräsertuffs eingeschriebenen – ein „Windgarten“ mit trockenheitsresistenten Steppengräsern.
Als Hommage an den wohl berühmtesten Winterthurer Sportler schlagen wir vor, den noch namenlosen Platz nach Hans (Joan) Gamper, dem in Winterthur geborenen Gründer des FC Barcelona, zu benennen.
Projektdaten
| Ort | Winterthur | 
| Veranstalter | Stadt Winterthur, Amt für Städtebau | 
| Programm | Zentrum für Leistungs- und Breitensport | 
| Jahr | 2010 | 









