162 – Erweiterung Maurerschule, Winterthur
Erweiterungsbau
Direktauftrag
Die Maurerschule wurde 2009 als Erweiterungsbau der städtischen Tagesschule für cerebral gelähmte Kinder fertiggestellt und eingeweiht. Das ursprünglich auf fünf Oberstufenklassen ausgelegte Schulhaus ist zuletzt durch steigende SchülerInnenzahlen an seine Kapazitätsgrenzen gestossen. Zudem hat sich das Anforderungsprofil verändert. Der Anteil stärker beeinträchtigter Kinder ist gestiegen, sodass eine Anpassung des Erschliessungskonzepts mittels zusätzlichem Lift nötig ist.
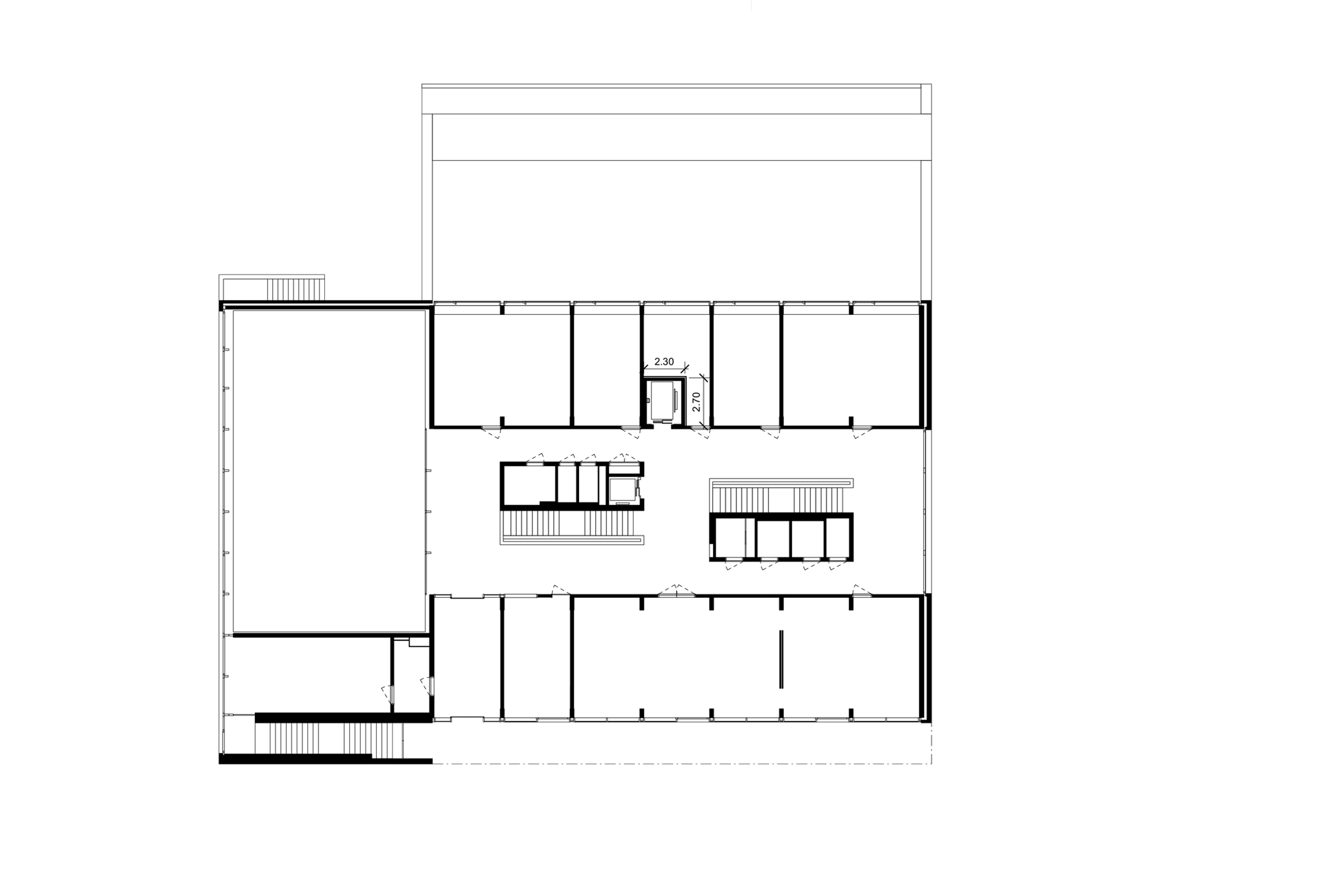
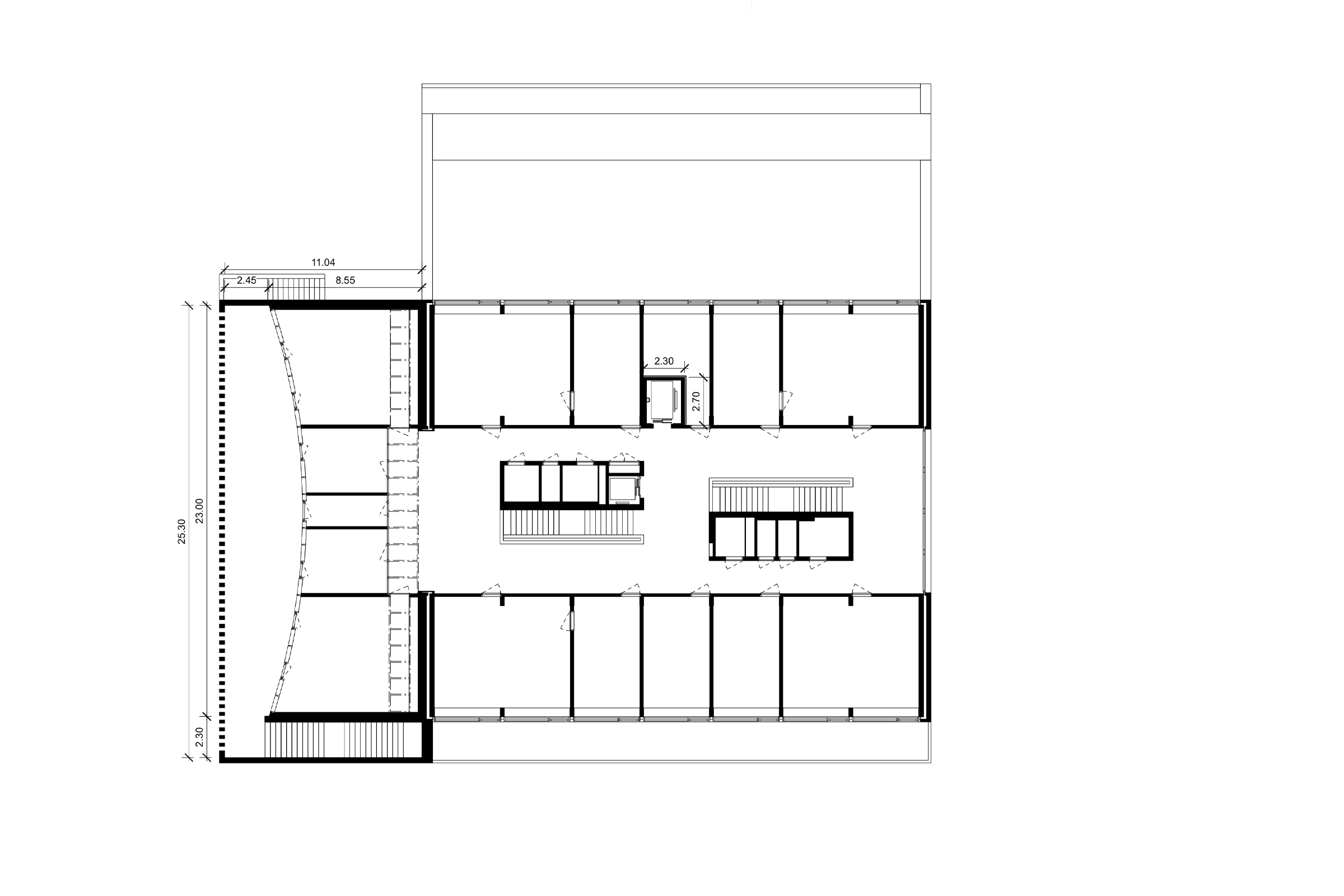
Auf dem aussenliegenden Terrassenhof im 1.Obergeschoss (Aussenklassenzimmer) wird in Holzständerbauweise eine interne Erweiterung mit zwei Klassenzimmern und zwei Gruppenräumen realisiert. Der neue Baukörper wird in die vorhandene Struktur hineingestellt und schliesst zweiseitig an bestehende Aussenwände an. Die Brüstung der Aussentreppe wird erhöht und bildet den Abschluss an der dritten Seite. Eine geschwungene Glasfront schliesst die Erweiterung zur perforierten Aussenwand (Nord-Ost-Fassade) hin ab, sodass ein schmaler Aussenbereich erhalten bleibt.
Der zusätzliche Lift wird in der süd-östlichen Raumschicht integriert. Die Türe öffnet auf den bestehenden Erschliessungsbereich in der Gebäudemitte. Für den neuen Liftschacht müssen die beiden Decken zwischen UG und 1.OG, sowie die Bodenplatte geöffnet werden. Durch die geringe Überfahrtshöhe können aufwändige Anpassungsarbeiten am bestehenden Dach verhindert werden.
Projektdaten
Ort | Winterthur |
Bauherr | Stadt Winterthur, Departement Bau |
Programm | Erweiterungsbau |
Jahr | 2024-2025 |
Kosten | 3 Mio. CHF |
Geschossflächen | 210 m2 |