008 – Primarschulhaus Laubegg, Winterthur
Neubau
Projektwettbewerb
1.Preis
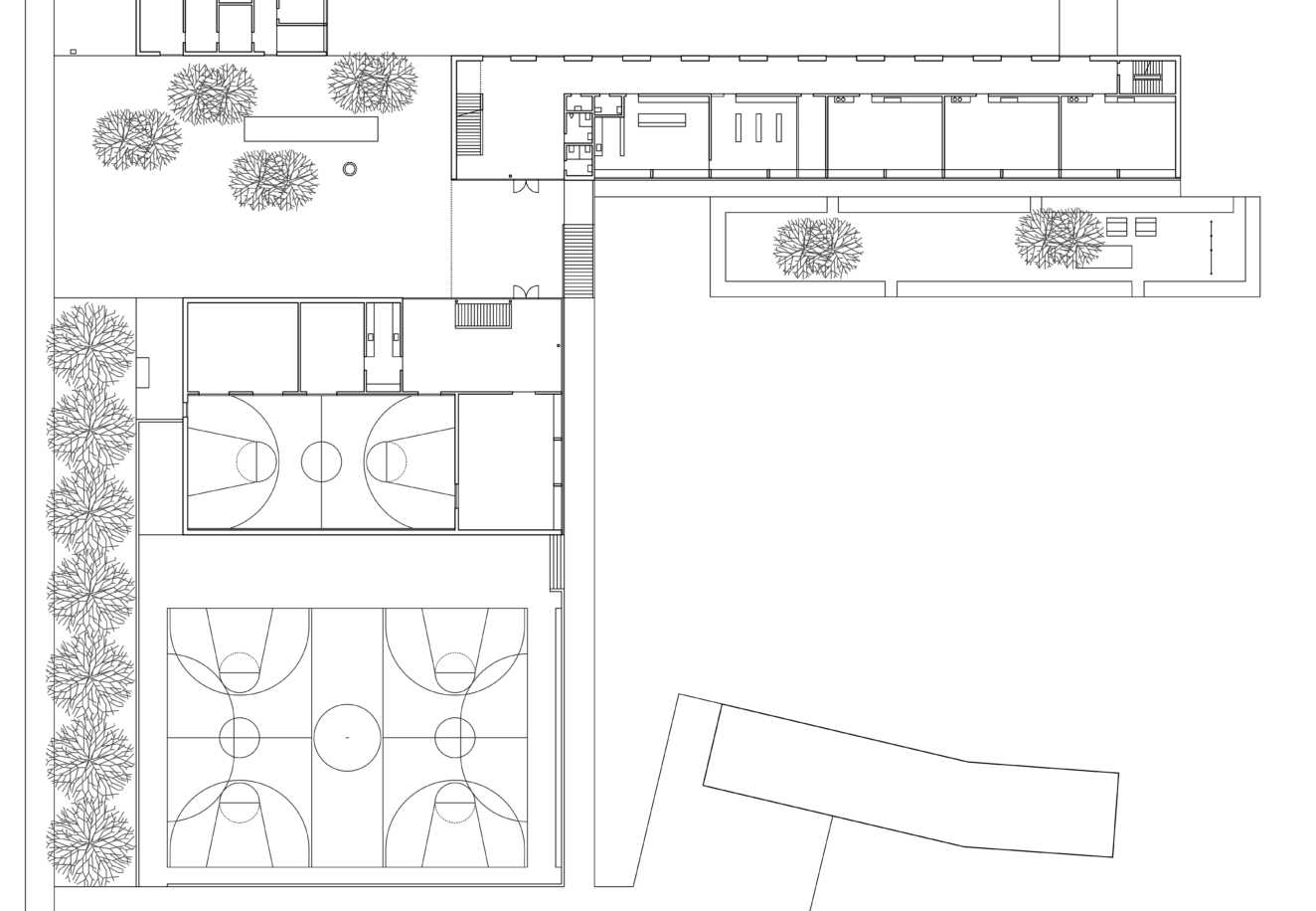
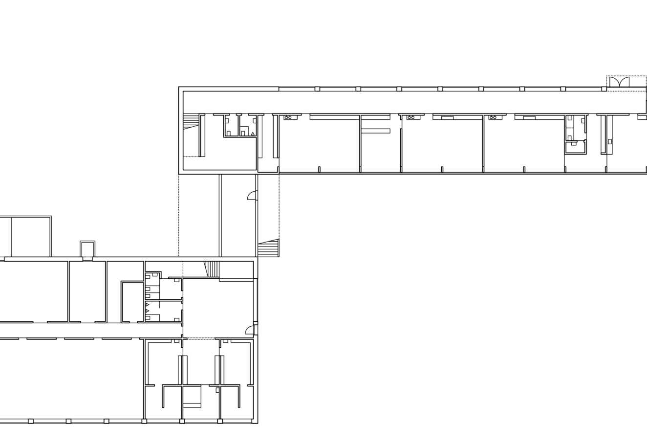
Städtbauliche Situation
Das Wohnquartier Dättnau befindet sich am südwestlichen Stadtrand von Winterthur. Das Projekt führt die offene Bebauungsstruktur des Quartiers weiter. Eine lose Verkettung von Plätzen und Wiesen schafft eine grosszügige Weite und respektiert den offenen Übergang zur Landschaft. Die drei Baukörper der Schulanlage werden durch einen gemeinsamen Sockel verbunden und gruppieren sich um den Pausenplatz. Der Platz wird zum zentralen Ort der Anlage und zu einem öffentlichen Raum für das Quartier.
Materialisierung
Ein Sichtbetonsockel verbindet sämtliche Gebäude und Hartplätze. Grossflächige, grau eingefärbte Faserzementplatten beplanken die darüberliegenden, scharf geschnittenen Baukörper. Von Gebäudeecke zu Gebäudeecke gespannte, dunkel eloxierte Fensterbänder unterstreichen die horizontale Schichtung. Im Aussenbereich treten die Farben eher zurückhaltend in Erscheinung. Über die einheitliche Materialisierung in Beton und Hartbeton wird die eingeschriebene Form der Erschliessung ausgezeichnet. Im Gegensatz dazu werden die Schulräume von warmen und kräftigen Farben dominiert. Oxidrote Einbauschränke, ein in der gleichen Farbe ausgebildeter Arbeitssims und Eichenparkett prägen die Schulzimmer.
Projektdaten
| Ort | Winterthur Dättnau |
| Bauherr | Stadt Winterthur, Departement Bau |
| Programm | Primarschulhaus mit Turnhalle und Mehrzwecksaal |
| Jahr | 1996-2002 |
| Kosten | 13 Mio. CHF |
| Geschossflächen | 4300 m2 |











