068 – Primarschule Bottighofen, Bottighofen
Schulraumerweiterung 
Projektwettbewerb
2.Platz
Ensemble und Solitär
Zusammen mit zwei ebenso markanten Häusern an der Hauptstrasse repräsentiert das alte Schulhaus als öffentliches Gebäude die traditionelle ländliche Bautypologie. Diesem Ensemble soll ein ebenso autonomes neues Schulhaus gegenüber gesetzt werden.
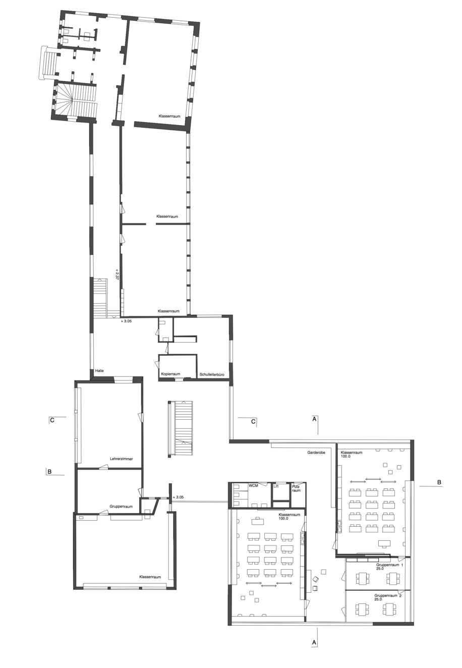
Gebäudestruktur und Flexibilität
Der quadratische Gebäudegrundriss und die vorgeschlagene Baustruktur lassen eine flexible Raumaufteilung zu. Mittels beweglicher Trennwände können Gruppenräume zu einem Raum zusammengelegt werden. Ausserdem erlaubt eine Brandschutz-Schiebetüre die Nutzung der Korridore für den Unterricht.
Aussenraum
Drei gedeckte Aussenbereiche strukturieren den Platz, bieten einen Witterungsschutz und spenden im Sommer Schatten. Ein Streetball-Feld erweitert das Angebot des Pausenplatzes, der zusätzlich mit Sitzbänken und einem Brunnen möbliert wird.
Materialisierung
Der neue Massivbau mit seiner sandgestrahlten Ortbeton-Fassade in einem beigen Farbton übernimmt den Charakter des bestehenden Schulgebäudes. Das leicht geneigte Dach wird in Eternitschiefer eingedeckt. Sein zentrales Oberlicht erinnert an die Dachaufbauten beim alten Schulhaus in Form der Uhr oder Lukarne.
Projektdaten
| Ort | Bottighofen | 
| Veranstalter | Schulgemeinde Bottighofen | 
| Programm | Primarschule | 
| Jahr | 2010 | 
| Geschossflächen | 1200 m2 | 





