137 – Neubau Schulhaus HPS Rümelbach, Rümlang
Projektwettbewerb, 4. Preis
Schulanlage Rümelbach
Die Schulanlage Rümelbach steht am südöstlichen Siedlungsrand von Rümlang auf einem grossen, nach Süden leicht ansteigendem Areal. Das Schulhaus mit Kindergarten, Turnhalle und Abwartshaus bilden zusammen ein Ensemble, das 1991 durch einen provisorischen Pavillonbau verunklärt wurde. Auf der nordöstlichen Seite schliesst die katholische Kirche den sehr grosszügigen, offenen Aussenraum ab. Die Schulanlage wurde 1967–69 durch Bernhard Weis (Architektur) und Willi Neukom (Landschaftsar.) geplant. Im denkmalpflegerischen Bericht wird die Offenheit der Anlage gelobt. Die für die 60er Jahre typischen Sichtbetonbauten verfügen über eine bemerkenswerte Fassadenaufteilung. Im Innern überrascht das Gebäude durch eine raffinierte Kombination von Holz und Sichtbeton. Im Aussenbereich besticht die Anlage durch eine streng orthogonal angeordnete Abfolge von Plätzen und einer sanft in die Topografie gesetzten Treppenanlage aus grosszügigen Waschbetonelementen.
Städtebau / Setzung
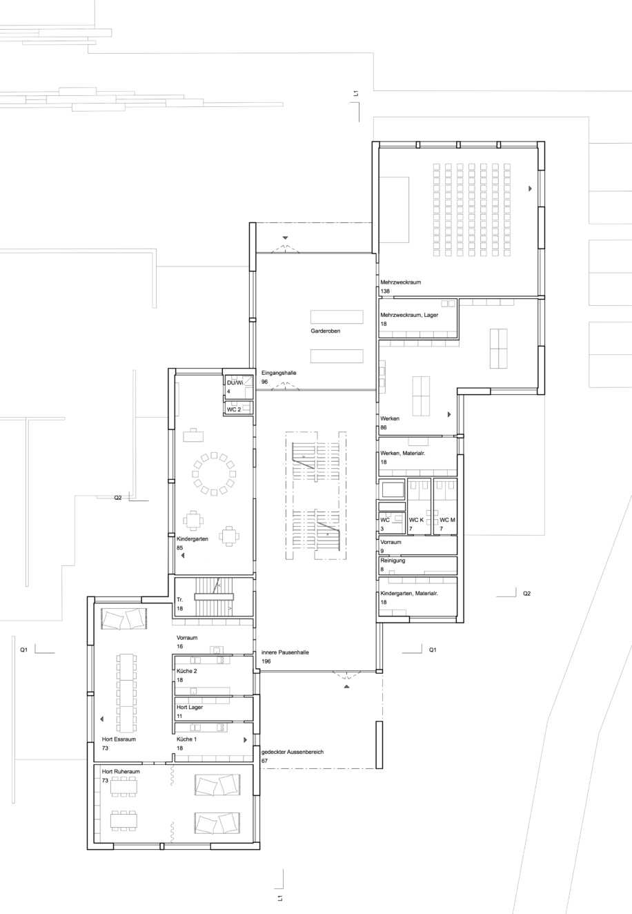
Das zweigeschossige Schulhaus wird auf die leichte Erhöhung am südlichen Rand des Schulareals gesetzt und über eine grosszügige Treppenanlage mit dem bestehenden Pausenplatz und der Bushaltestelle verbunden. Das Gebäude der HPS fasst den offenen Aussenraum zwischen Schulhaus und katholischer Kirche und fügt sich in die orthogonale Ausrichtung auf dem Areal ein. Gleichzeitig ermöglicht der abgetreppte Baukörper weiterhin einen direkten Bezug zum südlich gelegenen Landschaftsraum. Der Zugang zur HPS erfolgt von der Hofseite über den vorgelagerten Pausenplatz. Eine einladende Stufenanlage verbindet den neuen Pausenplatz mit dem bestehenden Hauptzugang der Primarschule. Damit reiht sich der neue Pausenplatz selbstverständlich in die Reihe von Plätzen ein, welche die Schulanlage bereits heute prägen.
Aussenraum
Die bestehende orthogonal ausgerichtete Aussenraumgestaltung aus dem Jahre 1969 von Willi Neukom bildet die Ausgangslage für die Weiterführung des Aussenraumes der HPS. Speziell die differenziert gestalteten Stufenanlagen aus Waschbeton bilden die Referenz für das verbindende Element zwischen dem Primarschulhaus und dem Neubau. Diese Stufenanlage überwindet den Terrainanstieg und ist hindernisfrei begehbar. Sie dient mit ihren unterschiedlichen Höhenversätzen auch als attraktiver Spiel- und Aufenthaltsort und festigt damit den Zusammenhalt zwischen HPS und Primarschulhaus. Die Kirche St.Peter wird gestärkt durch den umgebenden Grünraum. Zwischen HPS und Kirche befindet sich die direkte Vorfahrt mit den acht Parkplätzen. Diese werden über den Langenstegweg erschlossen. Dem Neubau vorgelagert bildet ein grosszügiger Platz mit einem homogenen Belag, gefasst durch Stufenelemente aus Beton, den Zugang zum Gebäude. Der offene Bewegungsraum mit Bodenspielen führt über- gangslos zum westlich liegenden, ruhigen Baumbestand, der den Schülern Schatten spendet. Die gebäudeinternen, funktionalen Raumaufteilungen im Erdgeschoss spiegeln sich im Aussenraum wider. Innen und Aussen stehen dadurch in direktem Dialog miteinander. Ein abgetrennter Spielgarten für den Kindergarten, der Aussenbereich des Hortes mit Rückzugsorten in einem kleinen Spielwald und ein überdachter Bereich sowie der Aussenbereich der Werkräume bilden die an das Gebäude angrenzenden Räume. Allen gemeinsam ist die ruhige Lage im Übergang zur umgebenden Landschaft. Die Materialisierung und Bepflanzung orientiert sich stark am Bestand und an der landschaftlich geprägten Situation. Möglichst wasserdurchlässige Beläge wie Drainasphalt, Kiesschaussierung, Betonpflastersteine und Betonelemente mit aufgerauter Oberfläche lassen eine rurale Stimmung entstehen. Die heutigen Rasenflächen werden, wenn sie nicht als Spielbereiche genutzt werden, als Wildblumenwiesen angelegt. Ökologisch wertvolle und klimaresistente Laubgehölze wie Ahorne, Eichen und Mehlbeer-Arten bilden Baum- und Strauchgruppen und ergänzen den Bestand. Mit der Dachwasser-Retention entsteht ein Feuchtstandort, der mit spezifischen Gehölzen und Wildstauden ergänzt wird.
Innere Organisation
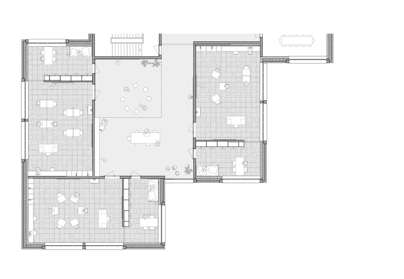
Das Schulhaus ist einfach und verständlich organisiert und ermöglicht es den SchülerInnen, sich das Gebäude rasch anzueignen. Der Bau wird über einen grossen Windfang mit Garderoben erschlossen, an die sich eine zentrale Halle anschliesst. Diese zentrale Halle hat einen direkten Bezug zum vorgelagerten Pausenplatz. Werken und Mehrzweckraum auf der einen, Kindergarten und Hort auf der anderen Seite fassen diesen Raum. Auf der Südseite befindet sich der Ausgang in einen geschützten Aussenbereich, der von den Schülern als Rückzugsort genutzt werden kann. Auch die Aussenbereiche von Kindergarten, Hort und Werken sind unmittelbar am Gebäude angeordnet. Die zentrale Treppenanlage führt ins obere Geschoss, wo Logopädie und Schulleitung direkt von der Treppenhalle aus erschlossen werden. Über die angegliederten Atelierräume gelangt man direkt in die Klassenzimmer und Gruppenräume. Damit entsteht je ein Cluster mit zwei und einmal mit drei Klassenzimmern und einem gemeinsam genutzten Vorraum (Atelierraum). Diese Aufteilung der Klassenräume auf zwei Bereiche schafft Übersichtlichkeit und Geborgenheit. Ein Dachaufbau belichtet diesen Raum mit einem Oberlicht und verschafft ihm dadurch einen Ateliercharakter. Ein zusätzliches, raumhohes Fenster schafft einen direkten Bezug zum Aussenraum und ermöglicht eine einfache Orientierung. Der Atelierraum kann möbliert werden und bietet der Schule die Möglichkeit, klassenübergreifende Unterrichtsformen anzubieten, beispielsweise mit Malworkshops, gemeinsamem Singen, Spielen, Musizieren etc.
Innenraum
Ein rot eingefärbter Hartbetonbelag in der Halle wie auch im Erschliessungs- und Atelierbereich geben dem Raum eine freundliche Grundstimmung. In diesem Bereich werden die Wände in Ortbeton ausgeführt und mit einer Akustikdecke abgeschlossen, was die Nutzungsqualität erhöht. Im Bereich der Raumschicht entlang der Fassaden wird ein Eichenparkett mit verputzten und gestrichenen Wänden und einer Akustikdecke vorgeschlagen. Sämtliche Türen und Einbaumöbel sind in Eiche massiv geplant.
Fassade
Das zweigeschossige Gebäude wird durch horizontale Betonbänder gefasst und mit geschlämmten Klinkermauerwerk ausgefüllt (Wandfüllung). Damit wird eine homogene Erscheinung geschaffen, welche sich über die differenzierte Oberfläche zurückhaltend vom bestehenden Schulhaus abhebt und sich gleichzeitig klar vom Holzanbau am Schulhaus absetzt. Die fein strukturierte Fassade ist sehr robust gegen mechanische Beanspruchungen und Vandalismus und verspricht eine lange Lebensdauer zu erreichen.
Projektdaten
| Ort | Rümlang | 
| Bauherr | Primarschule Rümlang, Schulverwaltung | 
| Programm | Heilpädagogische Schule | 
| Jahr | 2019 | 
| Geschossflächen | 2'300 m2 | 















