100 – Suchtfachklinik Zürich, Zürich
Instandsetzung und Umnutzung 
Planerwahlverfahren
1.Rang
Horizontale und Vertikale
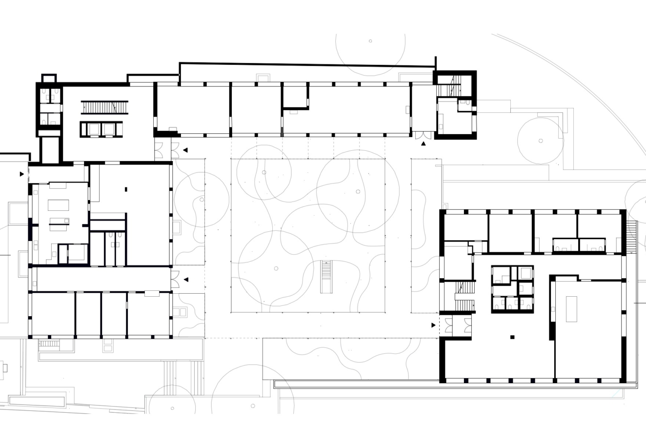
Die Anlage wurde in den späten 60er Jahren, nach Plänen von Theo Schmid, erstellt. Auf einen durch horizontale Bänder betonten Sockel sind drei Baukörper um einen grosszügigen Gartenhof gruppiert. Der Sockel ist in Ortbeton erstellt, Struktur und Richtung des Schalungsbildes betonen die Eigenständigkeit der Wandscheiben. Die verputzten Baukörper werden durch Bandfenster geprägt, wobei die Bänder durch Ortbetonstützen unterbrochen werden. Diese verbinden die Baukörper mit dem Sockel und den horizontalen Bändern der Pflanztröge. Zusätzlich überlagert das horizontale Band der Sonnenschutzblende den tektonischen Aufbau der Fassade.
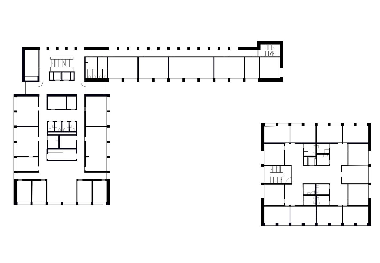
Umnutzung Obergeschoss
Dreizehn Bewohnerzimmer umschliessen ringartig das gesamte Obergeschoss mit Ausnahme vom bestehenden Treppenhaus. Die spiegelsymmetrische Grundrissfigur wird mit dem neuen Layout komplexer und vielschichtiger. Erschlossen werden die Bewohnerzimmer über vier frei möblierbare Raumtaschen, die einen gepufferten Übergang vom öffentlichen zum privaten Bereich gewährleisten. Sie sind Begegnungsorte, dienen aber auch der Erschliessung der Sanitärräume. Die Raumtaschen, wie auch die Sanitärkerne werden über Oberlichter grosszügig zenital belichtet.
Vom Schulhaus zum Wohngebäude
Horizontale Lammellen und ein ins Fenster gesetzter Kasten für den Sonnenschutz prägen die Fassade des Schulgebäudes, damit nimmt das Gebäude ikonografisch Bezug zum Schulhaus Freudenberg. Diese Referenz ist allerdings nicht gut umgesetzt und aus den Innenräumen wenig attraktiv. Das Spiel zwischen horizontalen und vertikalen Linien wird bei der Umgestaltung der Fassade aufgenommen und den neuen Bedürfnissen angepasst. Mit dem Verzicht auf feste Lammellen wird das Schulhaus subtil in ein Wohngebäude transformiert.
Sockel – Baukörper
Die drei Baukörper ruhen auf einem mehrschichtigen Sockel in Ortbeton. Dazu gehören auch die horizontal der Fassade vorgelagerte Pflanztröge und Pflanzbereiche. Sie formulieren einen fliessenden Übergang zwischen Gebäude und Umgebungsgestaltung. Die Tröge sollen wieder mit einer angemessenen Bepflanzung versehen werden und ihre Aufgabe als lineare Filter zwischen Strasse, Innenhof und Gebäude wahrnehmen. Der Sockel wird durch das Grün teilweise spannungsvoll verdeckt, vermittelt aber gleichzeitig zwischen Gebäude und Umgebung. Der Sockelbereich wird mit vorgehängten Betonelementen verkleidet. Die Betonstützen zwischen den Fenstern werden gedämmt und mit vorgehängten Betonelementen verkleidet, diese Elemente werden ebenfalls den Fensterbändern in den Obergeschossen vorgesetzt. Sie gewährleisten die inhaltliche und materielle Verbindung zwischen Sockel und dem darüber liegenden Baukörper. Die Fassade wird weiterhin von einem horizontalen Element geprägt. Dieses Element nimmt den Rafflamellenstoren auf und überlagert sich mit den zwischen den Fenstern liegenden Betonstützen. Die muralen Flächen der Fassade werden in den Obergeschossen mit einer aussenliegenden Wärmedämmung versehen und mit einem 4mm Vollabrieb verputzt.
Projektdaten
| Ort | Zürich | 
| Bauherr | Stadt Zürich, Amt für Hochbauten | 
| Programm | Suchtbehandlung | 
| Jahr | 2014-2019 | 
| Kosten | 23 MIo. | 
| Geschossflächen | 6600 m2 | 






























