092 – Wohnhaus Weinbergstrasse, Winterthur
Sanierung und Erweiterung mit 3 Wohnungen, Direktauftrag
Anerkennung, Architekturpreis Region Winterthur 2016
Das Mehrfamilienhaus aus dem Jahre 1929 in Winterthur Veltheim steht an ortsbaulich prägnanter Lage an der Weinbergstrasse; an der Schnittstelle zwischen landwirtschaftlich geprägten Bauernhausensembles und einer denkmalgeschützten Reihenhauszeilen. In Variantenstudien wurde aufgezeigt, wie auf der Parzelle die Bedürfnisse nach Wohnraum umgesetzt werden können.
Schnittstelle
Das Mehrfamilienhaus aus dem Jahre 1929 in Winterthur Veltheim steht an ortsbaulich prägnanter Lage an der Weinbergstrasse; an der Schnittstelle zwischen landwirtschaftlich geprägten Bauernhausensembles und einer denkmalgeschützten Reihenhauszeilen. In Variantenstudien wurde aufgezeigt, wie auf der Parzelle die Bedürfnisse nach Wohnraum umgesetzt werden können. Die langgezogene Parzelle erlaubt eine Erweiterung des Gebäudes in Richtung Garten und einen spannenden Dialog zwischen den Polen Alt und Neu. In der äusseren Erscheinung lehnt sich die Erweiterung mit den zwei Giebeldächern an den Altbau; im Innern des Neubaus kontrastieren hingegen grosszügige Räume die Kleinteiligkeit des Altbaus.
Verbindung
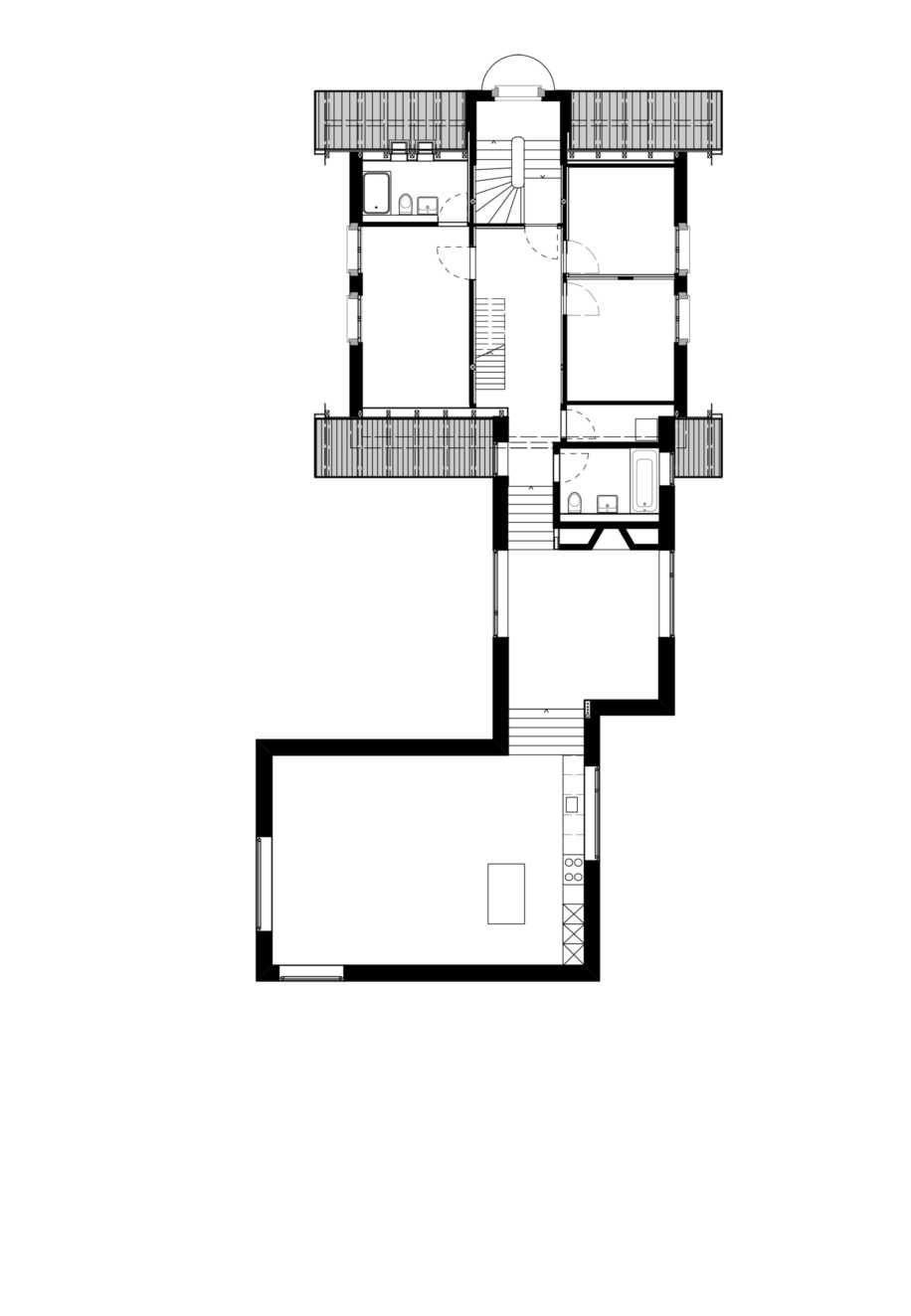
Der quadratische Grundriss des Altbaus wird um zwei rechteckige Grundrissteile ergänzt. Die baurechtlichen Rahmenbedingungen bilden dafür den Rahmen. Auf der Westseite entsteht aus der Dreiteilung ein hofartiger Aussenraum. Überraschende und spannende Raumbeziehungen verbinden Aussen-und Innenraum. Das bestehende Gebäude wird in seiner Grundstruktur minimal angepasst. Das Treppenhaus bleibt als Haupterschliessung der drei Wohnungen erhalten. Hier liegen auch der Wohnungseingang, die Zimmer und ein Bad. Aus der Hanglage resultiert die Abtreppung der Wohnungen über zwei Halbgeschosse. Auf dem ersten liegt die Küche und auf dem zweiten Halbgeschoss der Wohnraum. Eine grosszügige Treppe verbindet die beiden Haupträume über Eck.
Die Oberflächen im Altbau werden erneuert und bauphysikalisch (Schall und Energie) auf den heutigen Stand gebracht. Der Neubau wird als vorfabrizierter Holzbau mit einer verputzen Fassade konzipiert. Durch den direkten Anbau an den Bestand kann ein grosser Teil des Gartens südlich vom Gebäude erhalten werden. Der Garten wird in private und halbprivate Bereiche unterteilt.
Projektdaten
| Ort | Winterthur | 
| Bauherr | private Bauherrengemeinschaft | 
| Programm | 3 Wohnungen | 
| Jahr | 2013-2015 | 
| Kosten | 2.6 Mio. CHF | 
| Geschossflächen | 900 m2 | 















