070 – Haus Meerpferd, St. Gallen
Denkmalgerechte Sanierung 
Studienauftrag
1.Rang
Das Haus „Zum Meerpferd“ prägt durch sein Volumen und seine klassizistische Fassadengestaltung den Charakter des Grüningerplatzes im Herzen der St. Galler Altstadt.
Historischer Hintergrung
Das „Haus zum Meerpferd“ bestand in früheren Zeiten aus zwei kleineren Häusern. 1587 beabsichtigte der damalige Eigentümer einen grösseren Umbau, durch den das weniger tiefe und niedrigere Haus mit dem anderen Haus auf gleiche Tiefe und Höhe gebracht werden sollte. Im Jahr 1713 wurde der Anbau eines Erkers gestatet von dem heute nichts mehr übrig geblieben ist. 1817 ging das Haus zum Meerpferd an die Deutsch- Schweizerische Creditbank über die auch einen Umbau vornahm. Aufgrund des Umbaus besticht das grossvolumige Gewerbe- und Wohnhaus durch seine ruhige, klassizistische Fassadengestaltung. Das Reihenhaus auf annähernd quadratischen Grundriss, fünfgeschossig, mit einer im 20. Jahrhundert ausgebauten Mansarde trägt durch seinen ruhigen, ausgewogenen Fassadenaufbau wesentlich zum einheitlichen Bild des Platzes bei. Im Inneren sind im Erdgeschoss zwei ehemalige Lagerräume mit weitgespannten Kreuzgratgewölben erhalten geblieben.
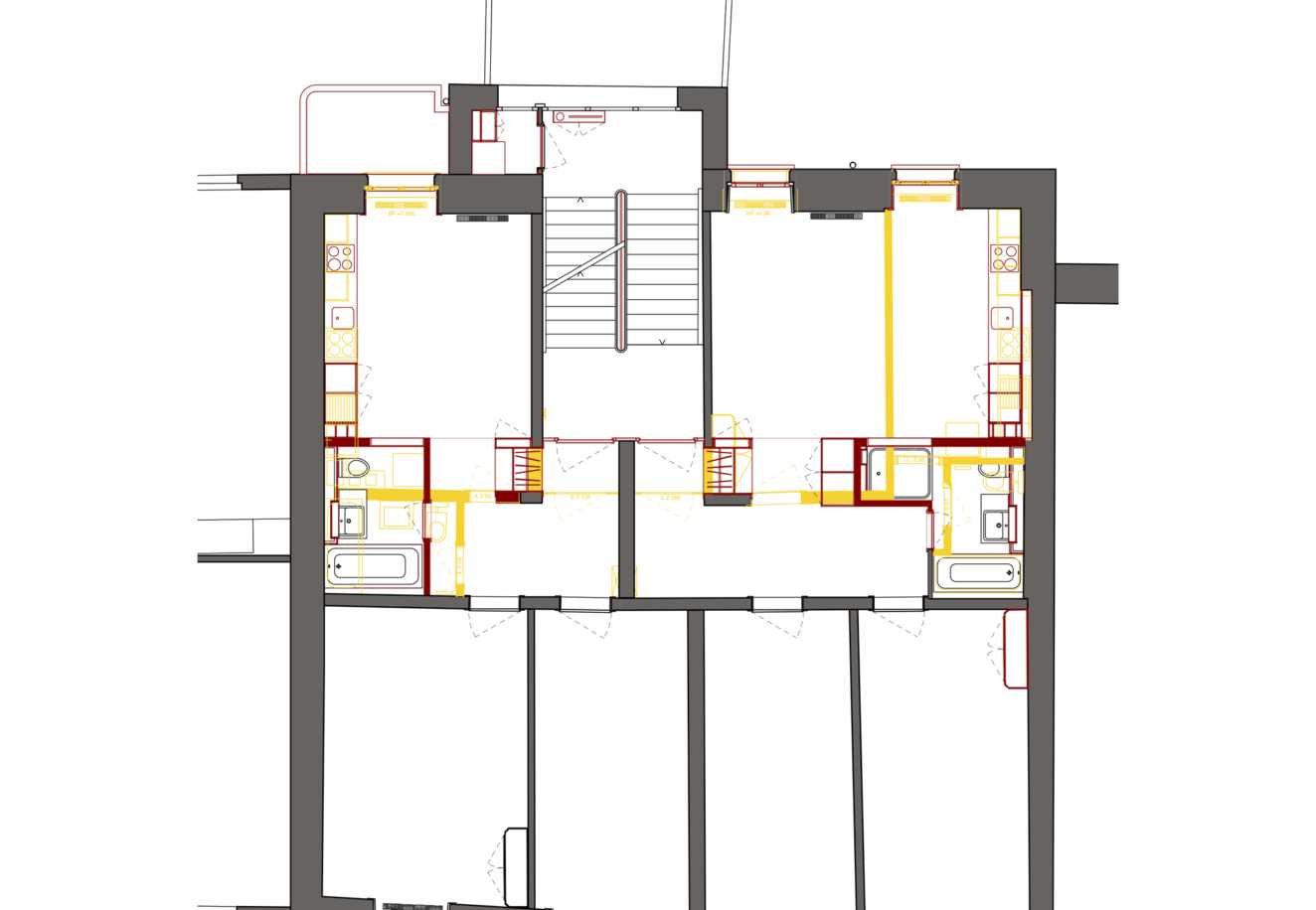
Projekt
Das Haus „Zum Meerpferd“ prägt durch sein Volumen und seine klassizistische Fassadengestaltung den Charakter des Grüningerplatzes im Herzen der St. Galler Altstadt. Die beiden Ladenlokale im Erdgeschoss bieten mit ihren imposanten Kreuzgratgewölben und grossen Schaufenstern ideale Voraussetzungen für eine attraktive Geschäftsnutzung. Die Orientierung nach Südosten und die räumliche Weite vor dem Haus ermöglichen die gute Besonnung der darüberliegenden Wohnungen. Dazu kommt die atemberaubende Aussicht auf den Grüningerplatz, die Kathedrale und Laurenzenkirche, in den oberen Geschossen auf den Bernegghang. Gegen Westen eröffnet sich der Blick über die Dachlandschaft der Multergasse.
Die Raumaufteilung der Wohnungen wird weitgehend beibehalten. Korridore und Küchen werden neu gestaltet, die Bäder vergrössert. Nach der Sanierung weist das Haus sechs 3 . Zimmer Wohnungen und zwei grosszügige Dachterrassen auf. Die Fenster bei der Dachgaube werden in einem Band zusammengefasst. – Damit wird der gelochten Platzfassade ein modernes Motiv gegenübergesetzt. Mit dem Attikageschoss erhält die historische Strenge formal einen neuen Abschluss.
Projektdaten
| Ort | St. Gallen | 
| Bauherr | Nef Immobilien + Handels AG, St. Gallen | 
| Programm | 3 Wohnungen, Ladengeschäft im Erdgeschoss | 
| Jahr | 2010-2013 | 
| Kosten | 1.5 Mio. CHF | 














