107 – Höhere Fachschule für Pflegeberufe, Luzern
Neubau
Projektwettbewerb
2. Preis
Eigenständigkeit
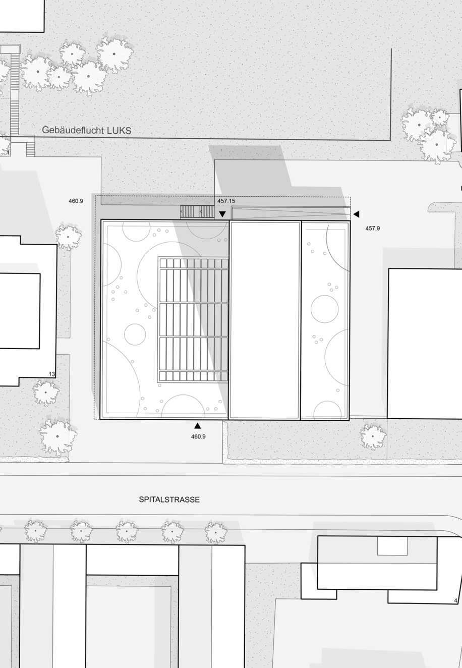
Das Grundstück für den Neubau der Fachhochschule liegt im Nordwesten der Stadt Luzern auf dem Areal des Kantonspitals. Die heterogene Bebauungsstruktur entlang der Spitalstrasse wird durch zwei markante 11-geschossige Hochhäuser akzentuiert. Der gestaffelte Baukörper der neuen Fachhochschule übernimmt mit seinem schmalen 8-geschossigen Gebäudeteil die Höhe der beiden Hochhäuser und markiert einen eigenständigen Auftritt. Die Silhouette des Baukörpers reagiert durch Versprünge auf die Nachbargebäude, dies hält die bauliche Dichte entlang der Spitalstrasse im Gleichgewicht. Die äusserst knappen Verhältnisse im Aussenraum werden durch zwei Dachgärten auf unterschiedlichen Niveaus kompensiert.
Identität und Kultur
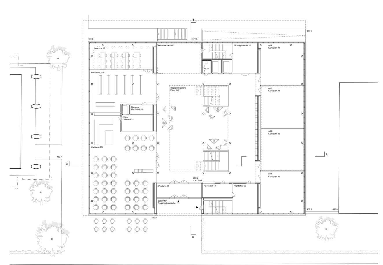
Wegen der engen Platzverhältnisse auf der Parzelle werden räumliche Qualitäten im Inneren des Gebäudes geschaffen. Im Zentrum des flächig organisierten Gebäudesockels liegt die grosszügig angelegte Eingangshalle als Begegnungszone. Im Erdgeschoss liegen weitere öffentliche Räume. Um die dreigeschossige, über ein Oberlicht belichtete Halle, gruppieren sich die Unterrichtsräume. Die Halle zieht den Blick nach oben auf die umlaufenden Galerien. Zwei Kaskadentreppen verbinden die Geschosse, mit ihren Brüstungen verbinden sie den Raum in der diagonalen. Auf den Galerien liegen die Lerninseln für die Studierenden. Diese bieten offene Zusammenarbeits- und Kommunikationsmöglichkeiten. Die kleinen Kursräume liegen in der schmalen Raumschicht an den Längsseiten. Das vierte Obergeschoss fungiert als Vermittler. An der Schnittstelle zwischen Unterrichtsräumen und Verwaltung liegen weitere Kursräume, die Lernberatung und Sitzungszimmer. In Geschossen darüber befindet sich die Verwaltung.
Struktur und Materialität
Der strukturell geprägte Aufbau der Grundrisse wird in der Fassadengestaltung aufgegriffen. Die vorgehängte Fassade ermöglicht, durch das Ablösen von der Statik, einen hohen Grad an Flexibilität. Die Grundstruktur der Fassade bilden geschlossene Brüstungsbänder aus keramischen Elementen. Fensterbänder gliedern den Baukörper zusätzlich und bilden den Rhythmus der Geschosse nach aussen ab. Dies führt zu einer ruhigen Gesamterscheinung. Im Gebäudeinneren prägen grossformatigen Kunststeinplatten den Innenraum. Wandflächen mit Holzverkleidung in Kombination mit Betonbrüstungen und einen Handlauf in Eiche prägen das Atrium und geben ihm eine hohe Aufenthaltsqualität. In den Lernbereichen wird der Bodenbelag durch einen bordeauxroten Teppich ergänzt und zeichnen diese besondere Orte innerhalb der Schule aus.
Projektdaten
| Ort | Luzern | 
| Veranstalter | Stiftung Berufsbildung Gesundheit Zentralschweiz (BGZ) | 
| Programm | Höhere Fachschule | 
| Jahr | 2015 | 







