114 – Schule Islikon, Islikon

Erweiterungsbau
Öffentlicher Projektwettbewerb im selektiven Verfahren

Mitte-Siedlungsrand

Das Areal der Primarschule Gachnang liegt am Rande des Dorfkerns von Islikon an der historischen Kefikonerstrasse. 1909 wurde das denkmalgeschützte Schulhaus vom Architekt Albert Riemli gebaut und soll nun erweitert werden. Die peri- phere Lage am Rande des Dorfes kompensiert das Schulhaus durch seine volumetrische Präsenz. Der Schulweg verbindet die Schulanlage mit dem Dorfzentrum. Das Schulhaus bildet in der Blickachse des Schulwegs einen räumlichen Abschluss. Die imposante Fassade mit Haupteingang orientiert sich mit seinem markanten Quergiebel zur Kefikonerstrasse. Die vier barock anmutenden, geschwungenen Dachgiebel und -ränder verbin- det das Gebäude mit den vier Himmelsrichtungen, und veran- kert den Altbau in der Mitte der Anlage.

Ortsbaulich relevante Gebäude in der Nachbarschaft sind das Ensemble des Greuterhof an der Hauptstrasse mit der kürzlich umgebauten Grossscheune zu einem Hotel. Masstäblichkeit stehen diese Gebäude in Beziehung zum geplanten Neubau der Schule.

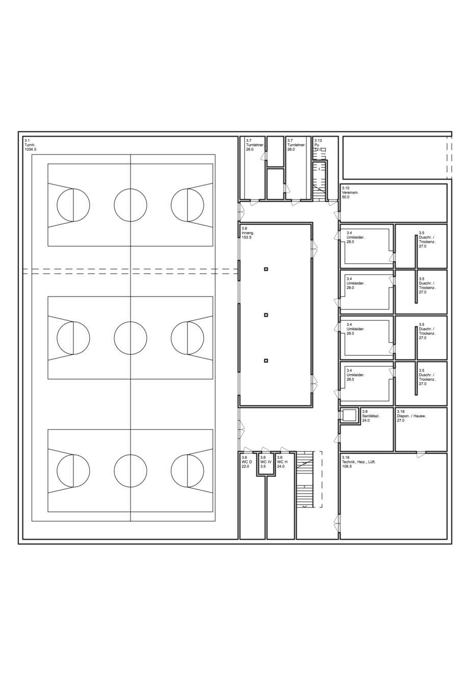
Hinzu kommen landschaftliche Elemente, welche den Ort prägen. Der Eisenbahndamm trennt die Schulanlage räumlich von der Weite der Thurebene. Das Schulareal liegt am Siedlungsrand und es stellt sich die Frage, wie der Übergang gegenüber dem Landschaftsraum artikuliert wird. Mit der vorgeschlagenen winkelförmigen Erweiterung soll der Sied- lungsrand gefasst werden. Gegenüber der Kefikonerstrasse wird das geschützte Schulgebäude freigestellt und in seiner Erscheinung gestärkt. Die Anbauten von 1966 und der Zwischenbau mit Turnhalle von 1976 werden rückgebaut und die architektonische Gesamtwirkung des alten Schulhaus in den ursprüngliche Form zurückgeführt.

Projektdaten

Ort Islikon
Bauherr Primarschulgemeinde Gachmang
Programm Erweiterung Schule
Jahr 2015
Kosten 17 Mio.
Geschossflächen 9'473.50 m2