116 – Schulanlage Freilager, Zürich
Neubau
Projektwettbewerb im offenen Verfahren
Städtebau
Mit einer klaren, kompakten Setzung wird das Raumprogramm auf zwei Baukörper von unterschiedlicher Geschossigkeit verteilt. Die Schulanlage wird als Teil vom durchgrünten Stadtkörper gelesen, bezüglich geometrischer Ausrichtung und Massstäblichkeit orientiert sich das Projekt aber am kompakten Stadtkörper des Freilager Areals und vermittelt zwischen den beiden Strukturen. Mit seiner markanten, bildhaften Erscheinung erhält das Quartier eine Schulanlage von grossem Identifikationspotential.
Die beiden Baukörper werden versetzt angeordnet, so dass eine starke räumliche Verbindung zum Grünraum erreicht wird. Die inszenierte Freitreppe öffnet die Schulanlage gegenüber dem Quartier und bildet ein Scharnier zum öffentlichem Grünraum. Daraus resultiert eine direkte Anbindung der neu erstellten Wohnbauten auf dem Freilagerareal mit dem Schulgebäude. Gleichzeitig wird der Grünraum gut an die Aussenanlagen der Schule angebunden.
Der Pausenplatz erschliesst das Schulgebäude und die beiden Turnhallen. Eine Rampe verbindet den Pausenplatz mit dem Allwetterplatz, der als erweiterter Pausenplatz gelesen wird. Parallel zum Freilagerweg wird eine zweite Fusswegachse eingeführt, welche direkt auf die Freitreppe führt. Über diesen Fussweg wird die Schulschwimmanlage direkt von Aussen erschlossen.
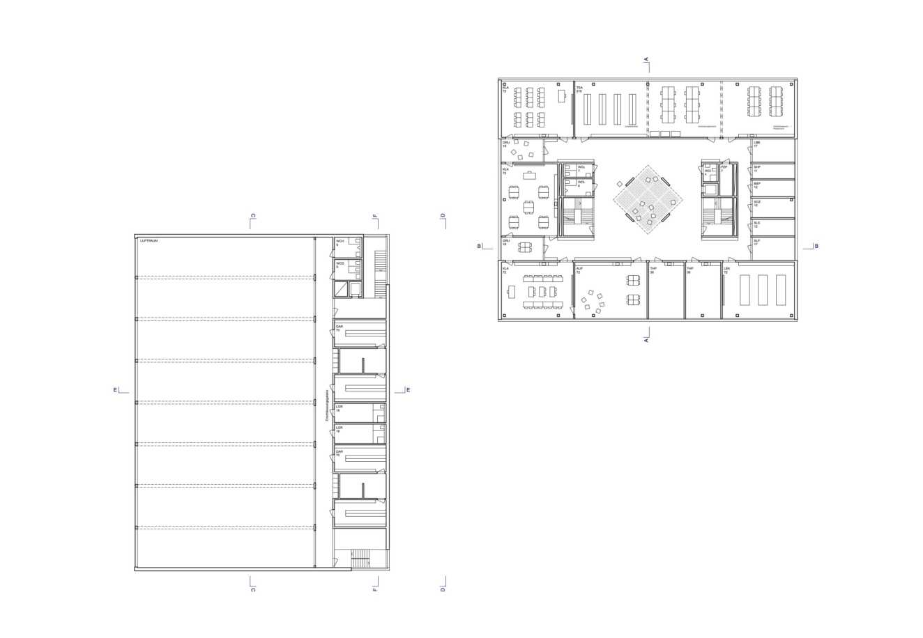
Organisation
Schulgebäude: Die gemeinschaftlichen Räume wie Mensa, Mehrzweckraum, Bibliothek, Musikräume und Küche befinden sich im Erdgeschoss. Sie werden über ein zentrales Foyer erschlossen und können unabhängig von den Obergeschossen betrieben werden. Mittels einer mobilen Trennwand kann der Mehrzweckraum mit dem zentralen Erschliessungsraum zu einem Grossraum verbunden werden. Das Raumangebot kann so erweitert werden und bietet Möglichkeiten für Projektwochen, Konzerte, Theateraufführungen. Die Schulräume befinden sich in den drei Obergeschossen. Erschlossen werden sie über zwei unabhängige Treppen. Die drei Obergeschosse sind über einen zentralen Innenhof räumlich miteinander verbunden. Der Innenhof dient den Schülern auch als Orientierungsraum im Gebäude und stellt sicher, dass die Erschliessungsräume gut belichtet sind. Das einfache statische Konzept ermöglicht eine polyvalente Nutzung der Raumeinheiten. Sämtliche Klassenzimmer haben eine Ost, West oder Südorientierung. Die Handarbeit- und Werkenräume sind im Sockelgeschoss untergebracht. Sportgebäude: Im Sportgebäude sind Doppelturnhalle und Schulschwimmbecken untergebracht. Die Turnhallen werden über den Pausenplatz betreten. Die Garderobenräume liegen im Obergeschoss und sind über die Zuschauergalerie erschlossen. Das Schulschwimmbecken verfügt über einen separaten Zugang im Sockelgeschoss. Eine innenliegende Treppe mit Lift verbindet die beiden Einheiten.
Projektdaten
| Ort | Zürich-Albisrieden |
| Bauherr | Stadt Zürich Amt für Hochbauten |
| Programm | Schule |
| Jahr | 2016 |
| Kosten | 54.5 Mio. |
| Geschossflächen | 9'515 m2 |







