Zum Inhalt springen
Schneider Gmür Instagram Menü ausklappen
  • Home
  • Projekte:
    • Wohnen
    • Schulen
    • Heim/Pflege
    • Öffentliche Bauten
    • Umbau
  • Projektstand:
    • In Bearbeitung
    • Ausgeführt
    • Wettbewerbe
  • Archiv:
    • Werkverzeichnis
    • Publikationen
  • Büro:
    • Portrait
    • Team
    • Jobs
    • Kontakt
  • Fokus:
    • Bildung & Architektur
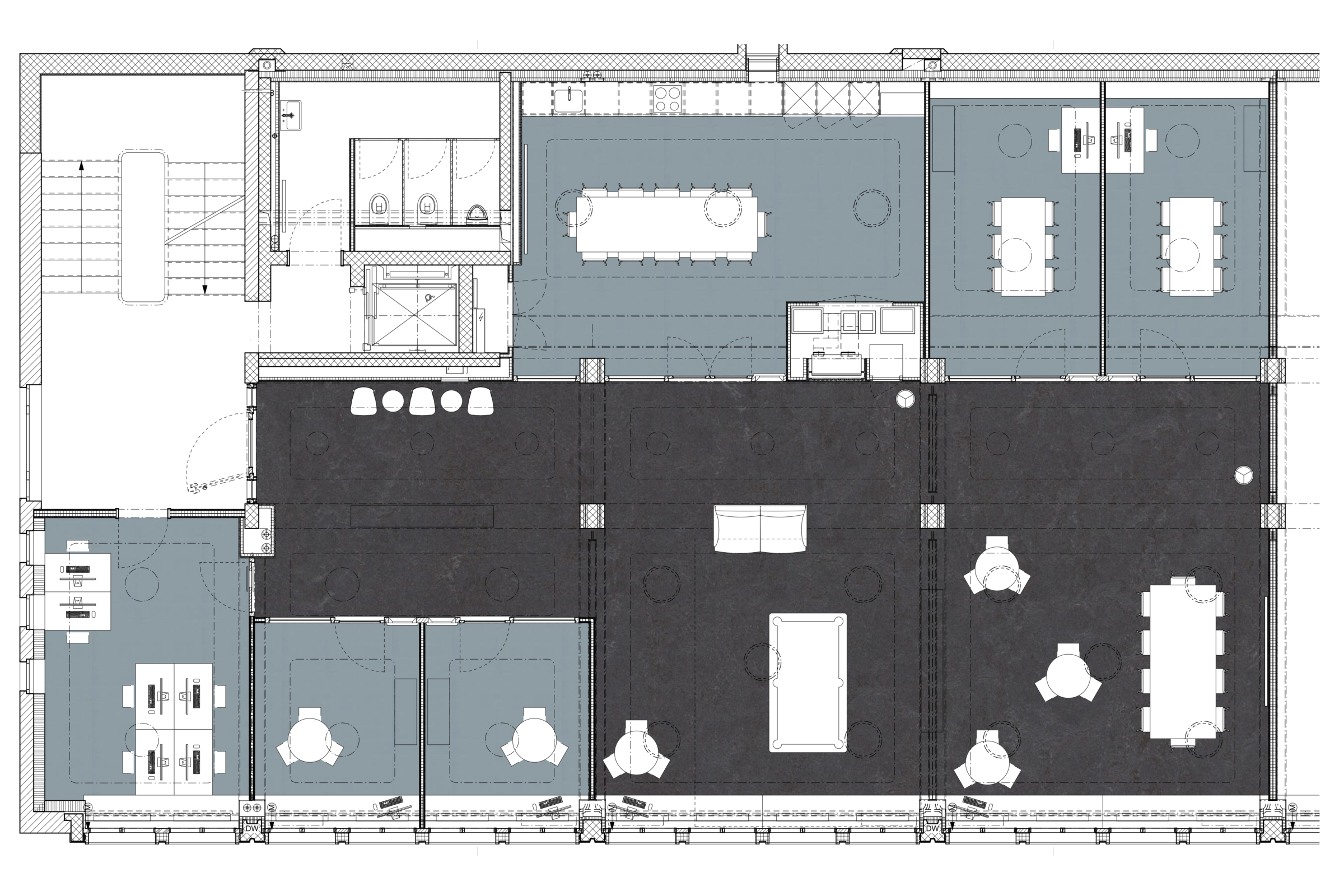
Umbau

175 – Mieterausbau Jumpin, Winterthur

Mieterausbau
Direktauftrag

 

 

Projektdaten

Ort Winterthur
Bauherr Stadt Winterthur, Departement Bau
Programm Mieterausbau
Jahr 2025
Kosten 300'000 CHF
Mietflächen 230 m2
Übersicht Arenenberg...  
Übersicht Arenenberg...  
  • Share on Facebook
  • Share on Twitter
  • Share on Linkedin
  • Share on Xing
  • Share on Pinterest
  • Home
  • Projekte:
    • Wohnen
    • Schulen
    • Heim/Pflege
    • Öffentliche Bauten
    • Umbau
  • Projektstand:
    • In Bearbeitung
    • Ausgeführt
    • Wettbewerbe
  • Archiv:
    • Werkverzeichnis
    • Publikationen
  • Büro:
    • Portrait
    • Team
    • Jobs
    • Kontakt
  • Fokus:
    • Bildung & Architektur

Schneider Gmür Architekten AG
Zürcherstrasse 39
8400 Winterthur
T +41 52 511 39 89

info
www.schneider-gmuer.ch

Datenschutzerklärung