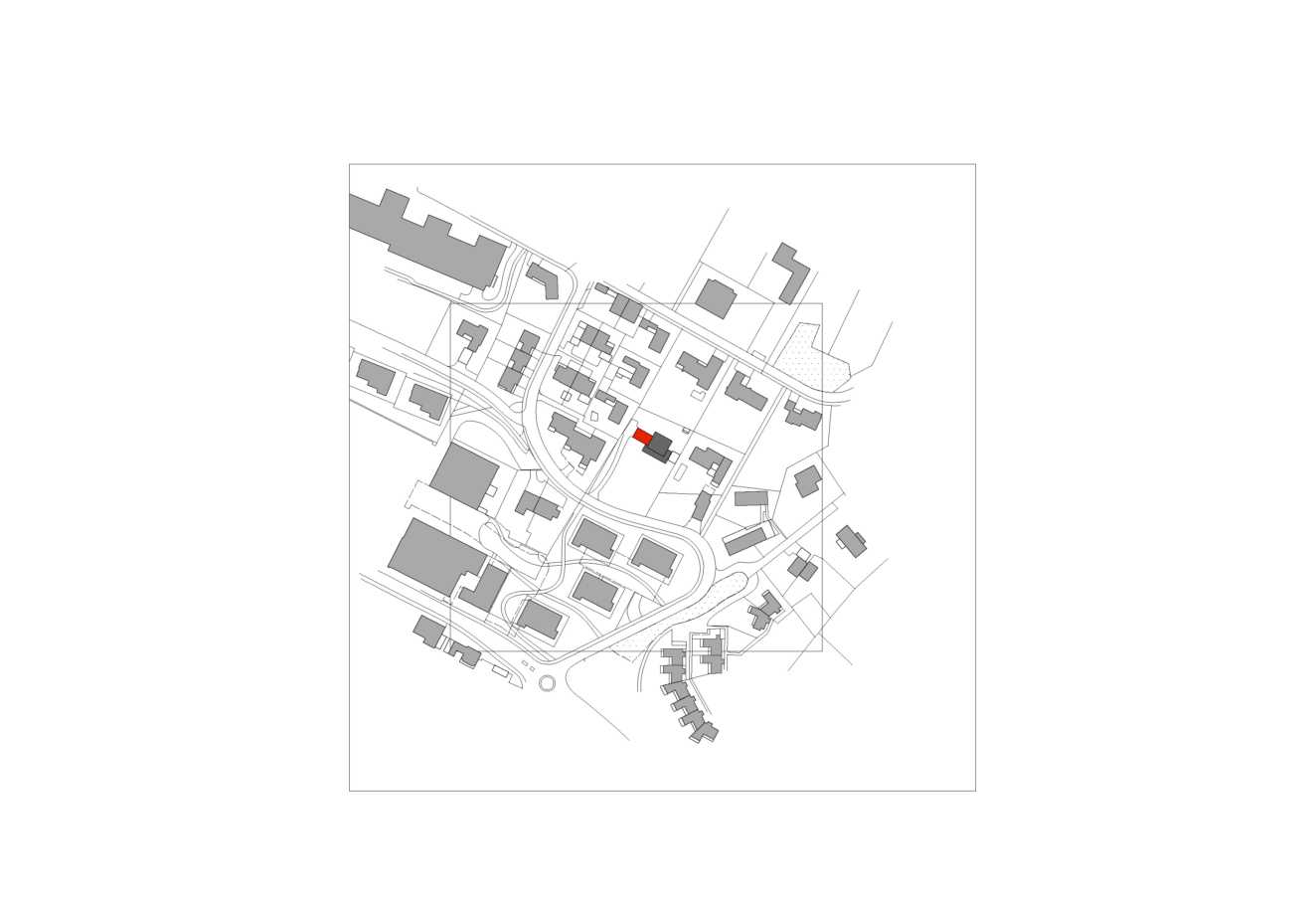
046 – Erneuerung Wohnhaus Haldenstrasse, Winterthur
Direktauftrag
Innen-Aussen
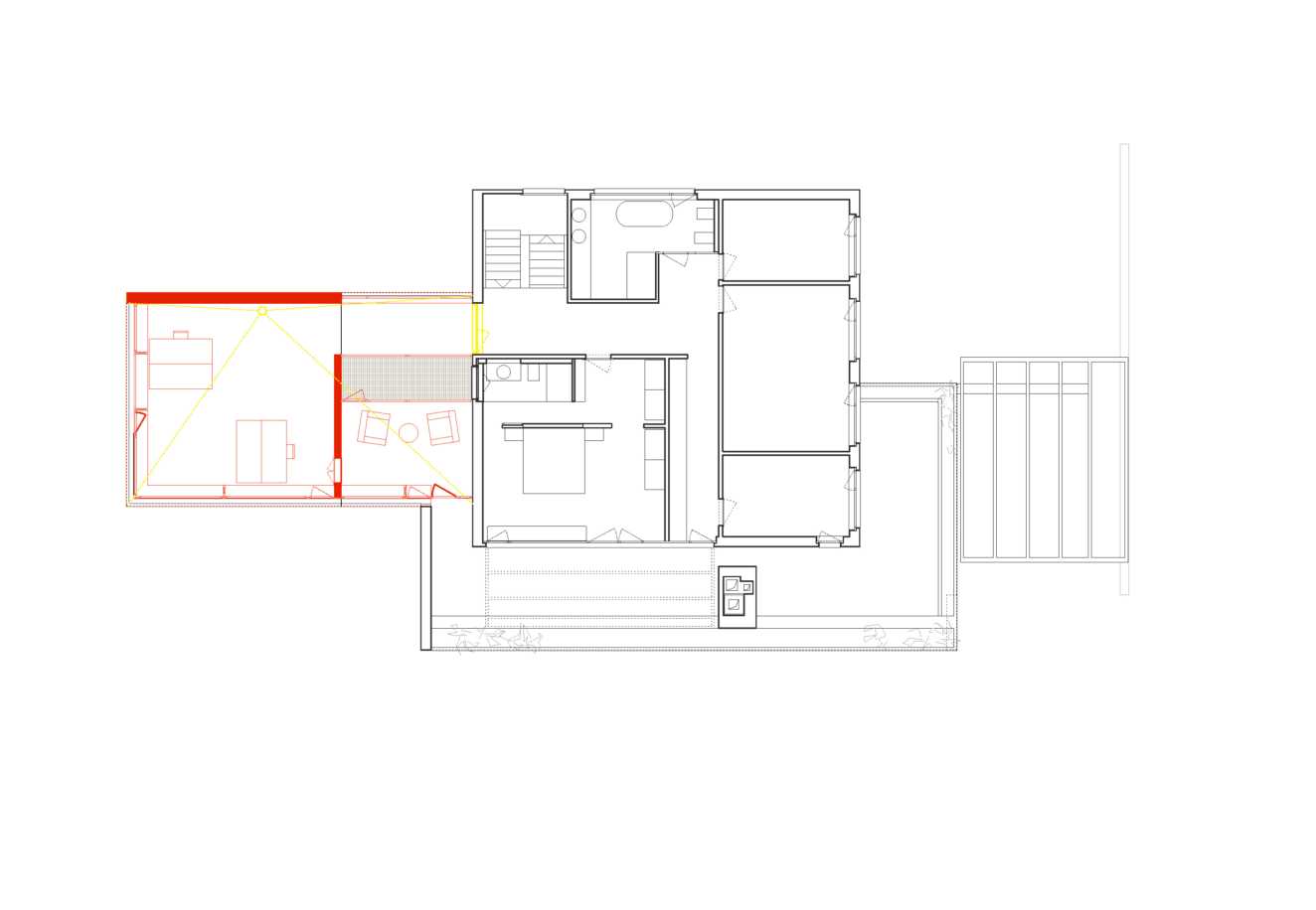
Das repräsentative Wohnhaus wurde 1963 durch die Architekten Klaiber, Affeltranger & Zehnder gebaut. In Anlehnung an die Raumstruktur der klassischen Moderne wurde das Erdgeschoss als offener Grundriss konzipiert. Raumgreifende Wandscheiben lassen Wohn- und Esszimmer mit dem Garten verschmelzen. Die Räume gliedern den Grundriss in drei Hauptbereiche: den weiten Wohnraum, den ursprüngliche Bereich der Küche mit zwei Bedienstetenzimmern und den Gästetrakt.
Erneuerung
Mit wenigen, gezielten und respektvollen Eingriffen wurde die Grundstruktur beibehalten und das Haus an die geänderten Lebensbedürfnisse angepasst. Heutigen Wohnvorstellungen entsprechend, wurde die kleine Küche mit Nebenräumen in einer grossen Wohnküche zusammengefasst. Der rot eingefärbte fugenlose Bodenbelag bildet einen farblichen Kontrast zum Steinboden (Solnhofer) und dem Holzparkett der Wohnräume. Ein rahmenloses Fenster bietet einen bildhaften Ausblick in den Garten und den Wechsel der Jahreszeiten. Die Bäder im Obergeschoss wurden erneuert und durch das Zusammenlegen von Räumen vergrössert. Zur Verbesserung des Wärmeverbrauchs wurden die Fenster und die bestehende Ölheizung durch eine Pelletsheizung ersetzt. Auf dem Dach wurden Solarzellen angebracht.
Projektdaten
| Ort | Winterthur |
| Bauherr | Privat |
| Jahr | 2006 |
| Kosten | 710'000 CHF |













