045 – Wohnhäuser am Rebweg, Trüllikon
Direktauftrag
Zürcher Weinland
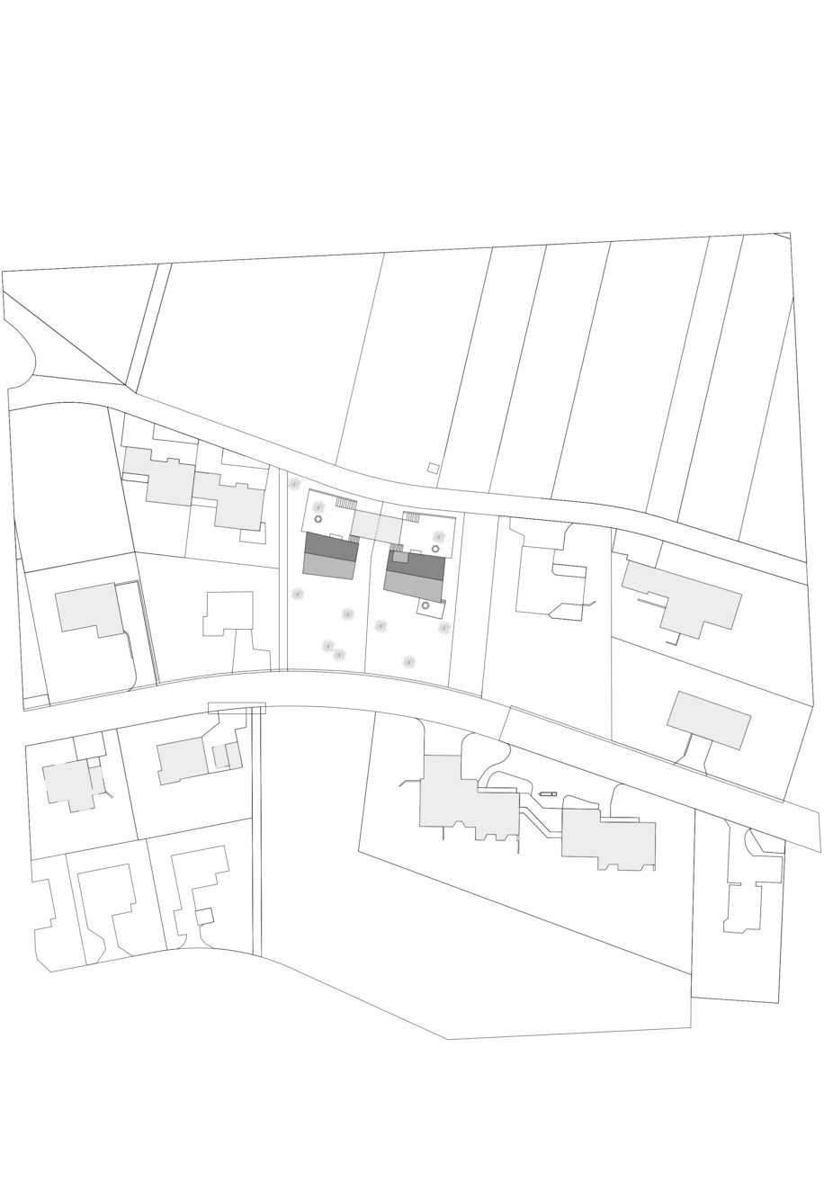
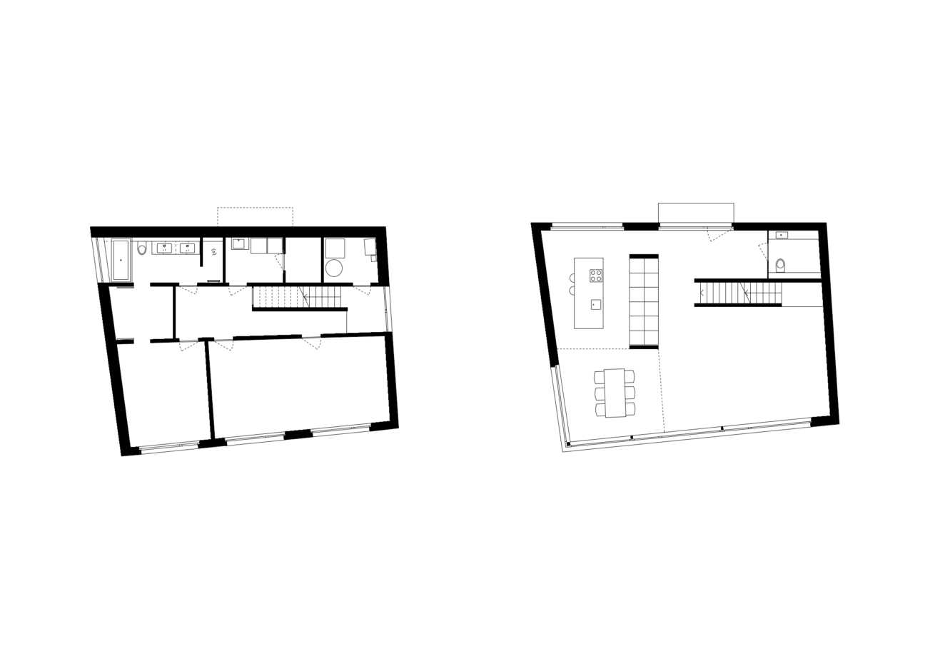
Die ländliche Gemeinde Trüllikon liegt am Fusse eines sonnigen Rebberges zwischen Winterthur und Schaffhausen. Die Restparzelle in einem 70er-Jahre Einfamilienhaus-Quartier liess sich nur mit gegenseitigem Näherbaurecht bebauen. Im Abstand von nur sieben Metern sind so zwei Einfamilienhäuser für zwei Parteien entstanden. Mit der schiefwinkligen Ausrichtung der beiden Wohnhäuser wurde die spezielle Geometrie der Parzelle aufgenommen. Ausgehend von den einander zugewandten kurzen Fassadenseiten entwickeln sich die beiden Häuser parallel zum Hang. Im trapezförmigen Grundriss spannen sie unterschiedlich grosse Grundflächen auf. Im Aufriss und in der Volumetrie resultieren daraus die zur Mitte hin fallenden Firstlinien.
Geschwister
In ihrer äusseren Erscheinung ähneln sich die beiden Häuser wie zwei Geschwister. Entsprechend dem Raumprogramm der beiden Familien wurden die Gebäude in Grundriss, Schnitt und Materialisierung völlig eigenständig entwickelt. Trotzdem gibt es Gemeinsamkeiten: Zentrale Treppen verbinden die je drei Wohngeschosse, und zweigeschossige Lufträume unter dem Dach machen die räumlichen Zusammenhänge in beiden Einheiten erfahrbar. Zur Aussicht nach Süden öffnen sich beide Bauten mit einem breiten Fensterband, das sich jeweils um die äussere Gebäudeecke zieht.
Projektdaten
| Ort | Trüllikon |
| Bauherr | Privat |
| Programm | zwei Wohnhäuser |
| Jahr | 2005-2006 |
| Kosten | 1.8 Mio. CHF |
| Geschossflächen | 660 m2 |
















